Продажа 2х-комнатной квартиры

65 м²
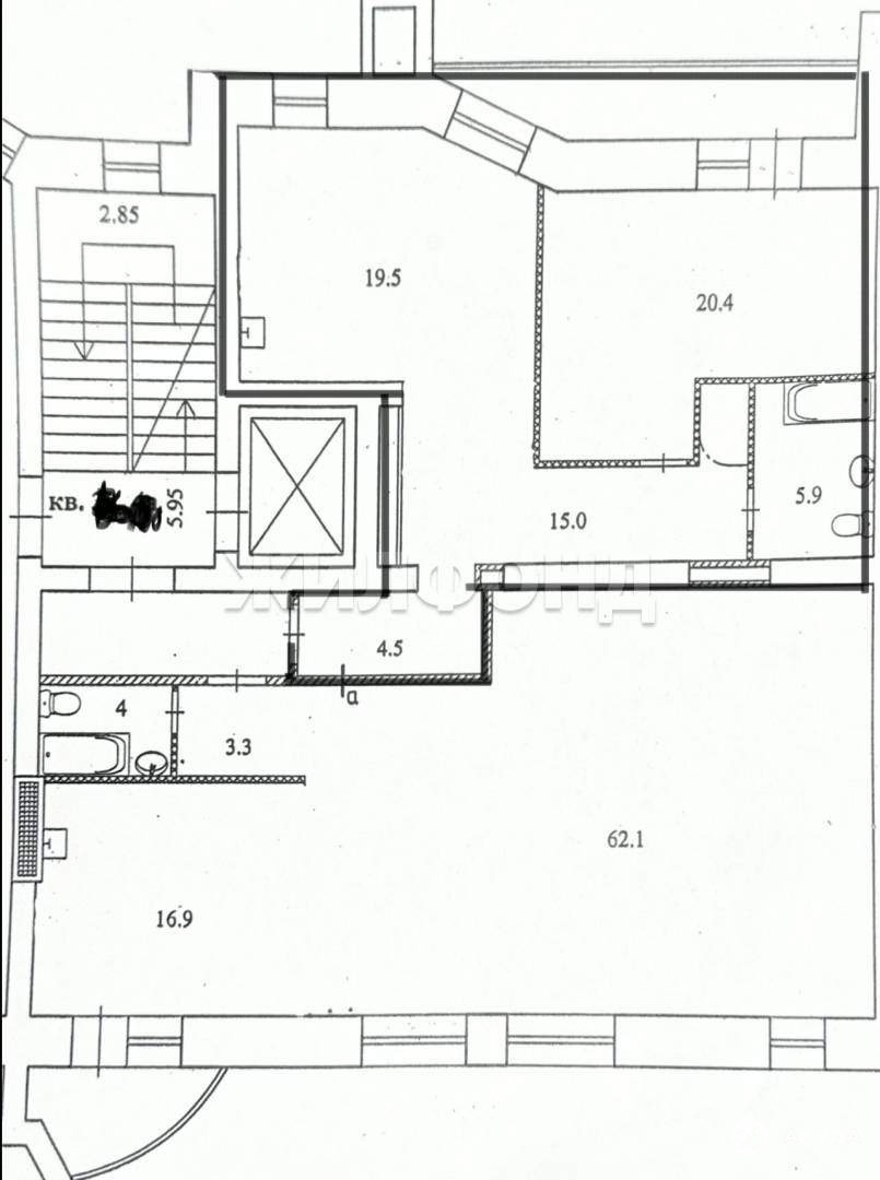
Площадь
20.4 м²
Жилая площадь
19.5 м²
Площадь кухни
2/6
Этаж

11 750 000 ₽

179 939 ₽ за м²

ID объявления 12475960

Поделиться

Добавить в избранное

2 комн. квартира по ул. Троицкий проспект. Общей площадью: 65.30 кв.м. Продается 2-х комнатная квартира по адресу пр. Троицкий д. 12.
-Общая площадь 65, 3 кв.м.
-Просторная зона кухни-гостиной.
-Большой санузел.
-Спальня с выходом на лоджию (лоджия застеклена) .
-Квартира в центре города, рядом с пешеходной исторической улицей Чумбарова-Лучинского.
-В престижном расположении среди коттеджной застройки.
-Кирпичный дом.
-В доме есть лифт.
-Закрытая дворовая территория.
-Есть детская площадка во дворе.
-Отличная инфраструктура района- в пешей доступности торгово-развлекательные комплексы, Набережная Северной Двины для прогулок.
-Окна выходят во двор.
-Сделана предчистовая отделка, установлены счетчики.



При звонке, пожалуйста, сообщите номер варианта -


При звонке, пожалуйста, сообщите номер варианта -
JV002029104557

Дата обновления: 7 марта 2026